CLOVERLY
844 Sq Ft | 2 Bedrooms - 1 Washroom
CLOVERLY
Cloverly is a 2-bedroom, 1-bathroom modular home with 844 sq ft of smart, efficient design. inspired by Clover Hill, New Brunswick, it's built for year-round living in Atlantic Canada.
With its charming rural look and practical layout, Cloverly is ideal for couples or small households seeking affordable, move-in ready housing.
Its compact size and thoughtful design offer comfort, simplicity, and functionality -- making it a perfect choice for a permanent or seasonal
home on your land.
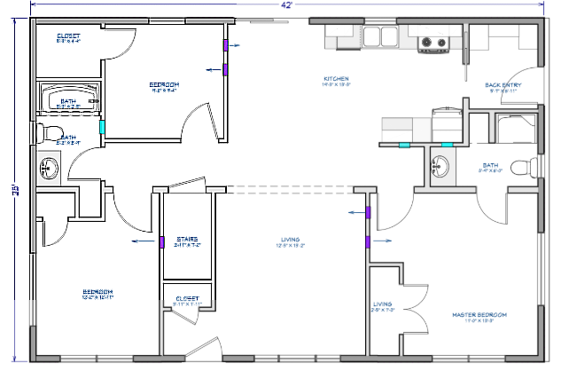
ROSEWYN
1176 Sq Ft | 3 Bedrooms - 2 Washrooms
ROSEWYN
Rosewyn is a 3-bedroom, 2-bathroom modular home with 1,176 sq ft of bright, open-concept living space. Inspired by the scenic charm of Rose Bay, Nova Scotia, Rosewyn is a modular home that blends coastal tradition and contemporary living. This Spacious three-bedroom, two-bathroom design offers a bright, open-concept layout ideal for families.
Its year round livability, combined with energy-efficient construction, makes it a perfect fit for those seeking a modern home with east coast character. With its thoughtful design, Rosewyn offers both comfort and functionality in a beautiful Atlantic Canada setting.
ELMSMERE
1350 Sq Ft | 3 Bedrooms - 2 Washrooms
ELMSMERE
Elmsmere is a 3-bedroom, 2-bathroom modular home offering 1,350 sq ft of bright and practical living space.
Inspired by the rural character of Elmsdale, Prince Edward Island, this home blends charm and durability with modern efficiency. Designed for year-round comfort, Elmsmere is perfect for families and homeowners looking for more space on their land.
With its smart layout and strong connection to the Maritimes lifestyle, this model delivers long-term value, warmth, and a true sense of home in Atlantic Canada.










